dipl. architekt eth sia
referenzobjekte
aktuelle projekte
vorprojekte
wettbewerbe
verkauf-vermietung
kontakt
unternehmen
impressionen
news
zusammenarbeit
home
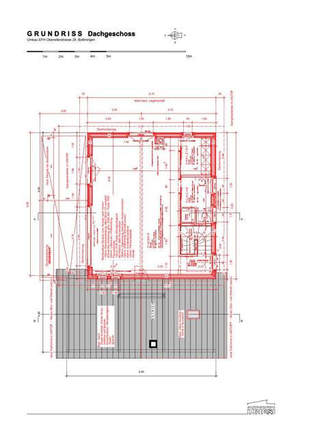
umbau/anbau
efh oberwilerstrasse
bottmingen